Описание
Электронасосы центробежные погружные типа Гном предназначены для откачивания загрязненных вод температурой до 35 ºС, исполнение Тр – до 60 ºС плотностью до 1100 кг/м³ , при содержании твердых механических примесей до 10 % по массе с плотностью твердых частиц не более 2500 кг/м³ и максимальным размером до 5 мм.
Корпусные детали и рабочие колеса электронасосов серии Гном выполнены из чугуна; корпусные детали электронасосов серии 1Гном выполнены из высокопрочной пластмассы, рабочие колеса – из чугуна.
Электронасосы выпускаются в однофазном исполнении на напряжение 220 В и в трехфазном исполнении на напряжение 380 В частотой 50 Гц.
Электронасосы не предназначены для эксплуатации во взрыво и пожароопасных помещениях.
Климатическое исполнение У* ГОСТ 15150-69.
Режим работы продолжительный.
Расшифровка обозначений
Условное обозначение электронасоса 1ГНОМ 6-10Д:
- 1ГНОМ – торговое наименование;
- 6 – номинальная подача;
- 10 – номинальный напор;
- Д – с поплавковым выключателем (датчиком уровня).
Основные технические характеристики электронасосов на номинальном режиме работы
| Типоразмер насоса |
Параметры энергопитания |
Ток, А |
Номинальная мощность электродвигателя, кВт |
Подача м³/ч (л/с) |
Напор, м |
КПД, %, не менее |
Масса, кг, без шнура питания |
| 1ГНОМ 6-10Д |
1~220В |
3,0 |
0,6 |
6 (1,66) |
10 |
30 |
10,0 |
Примечания:
1. Допустимое отклонение напора минус 10%, ток +15%, КПД минус 3%, отклонение напряжения сети питания +10% минус 5% и частоты тока ±2%.
2. КПД указан для оптимальной точки, находящейся в рабочем интервале характеристики.
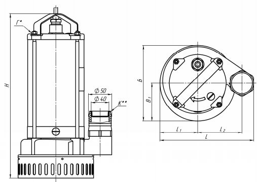
Габаритные и присоединительные размеры электронасоса

| Типоразмер электронасоса |
Размеры, в мм |
| H |
L |
L1 |
L2 |
B |
B1 |
| 1ГНОМ 6-10Д, 220В |
350 |
220 |
90 |
95 |
180 |
90 |
|
* Гарантийное пломбирование
** Консервационное пломбирование
|
Характеристики насоса

Устройство электронасоса
